Italiano
Serietà e trasparenza al vostro servizio!!!

GRAZIOSO BILOCALE

98.000 €
53 m2
1 Bagni
Codice
98 ROB
Città
Robbiate
Categoria
Appartamento
Spese condominiali
600 €
Locali
2
Box
1
Mq Box
19
Piano
2
Classe energetica
In fase di valutazione
Stato Immobile
Ottimo
Grado
Medio
Posizione
Periferia
Panorama
Vista Monti
Orientamento
Nord Est
Lati Liberi
1
Giardino
No
Arredi
Arredato
Tipo Soggiorno
Soggiorno
Tipo Cucina
A Vista
Riscaldamento
Autonomo
Tipo Riscaldam.
Caldaia
Tipo Impianto
Radiatori
Fonte Energetica
Metano
Acqua Calda
Autonoma
Raffrescamento
No
Infissi
Legno Doppio Vetro
Serramenti
Buono
Persiana
Oscurante Legno
Pavim. Giorno
Parquet
Pavim. Notte
Parquet
Pavim. Cucina
Parquet
Pavim. Bagno
Ceramica
Accesso Disabili
No
Accesso interno disabili
Non accessibile
Isolamento
Non presente
Isolamento termico
Nessuno
Isolamento acustico
Nessuno
Accessori
Antifurto, Armadio a Muro, Cancello Elettrico, Doppi Vetri, Impianto Satellitare, Porta Blindata, Zanzariere
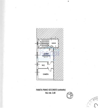
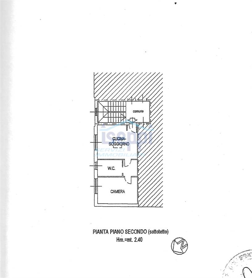
Scopri questo affascinante bilocale situato al secondo e ultimo piano di un contesto residenziale tranquillo, caratterizzato da poche unità abitative. Questo appartamento è unico nel suo genere, con un ingresso diretto che conduce a una zona giorno luminosa e accogliente, dotata di cucina a vista. La pavimentazione in parquet conferisce calore e stile agli ambienti, mentre i soffitti in legno con travi a vista aggiungono un tocco di charme rustico.

La camera da letto è spaziosa e ben organizzata, con armadiatura su misura che ottimizza lo spazio. Il bagno, di discrete dimensioni, è attrezzato con doccia e attacco per la lavatrice, rendendo questo appartamento ideale per una coppia o un professionista in cerca di comfort. Non mancano le comodità moderne, come il grande lucernaio elettrico con tapparella oscurante e zanzariera, che garantisce luce naturale e ventilazione.

L'immobile si presenta in condizioni impeccabili e completamente arredato, pronto per essere abitato dopo una semplice imbiancatura delle pareti verticali. Inclusi nel prezzo ci sono anche un box singolo di generose dimensioni e la disponibilità immediata. Con una superficie commerciale di 53 m² e un'ottima esposizione a nord e est, questo bilocale è la scelta perfetta per chi cerca un rifugio elegante e funzionale. Non perdere l'opportunità di visitarlo!

Condividi

Cookie preference